
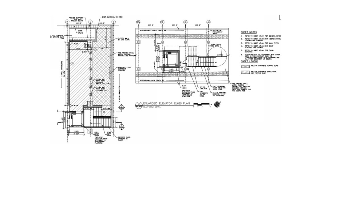
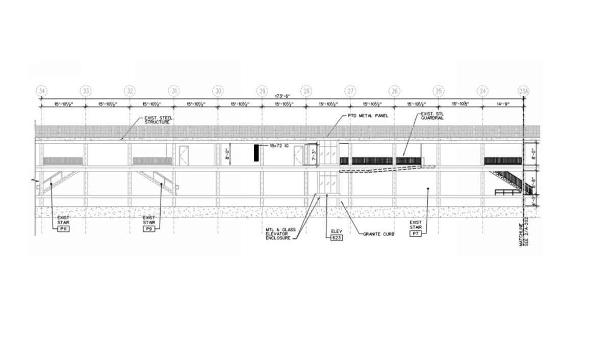
This project involves developing LOD 400 BIM models and as-built documentation for multiple transit facilities across all major disciplines. Using client-provided LOD 300 models, shop drawings, point cloud data, and redline markups, detailed modeling is executed in OpenBuildings Designer with workflow management through ProjectWise. The work follows defined input windows and structured timelines to ensure accurate, high-detail digital outputs that support construction, verification, and future asset management.
1. Develop LOD 400 BIM models for all major disciplines based on approved design models, shop drawings, and submittals.
2. Validate LOD 300 inputs to ensure accuracy before progressing to detailed modeling.
3. Produce as-built models and drawings using point cloud data and final redline markups.
4. Manage workflows and project data through ProjectWise for consistent and traceable delivery.
5. Handle any additional updates or scope changes on a Time & Material basis.
Connect with us to Streamline your construction process, reduce costs, and improve project efficiency with our expert-driven BIM & VDC solutions. To ensure seamless coordination, minimizing errors and delays, we help you to optimize workflows and maximize project success.