Develop precise interior BIM models, detailed Revit families, and fully coordinated documentation sets, ensuring that your interiors are clash-free and beautifully executed.
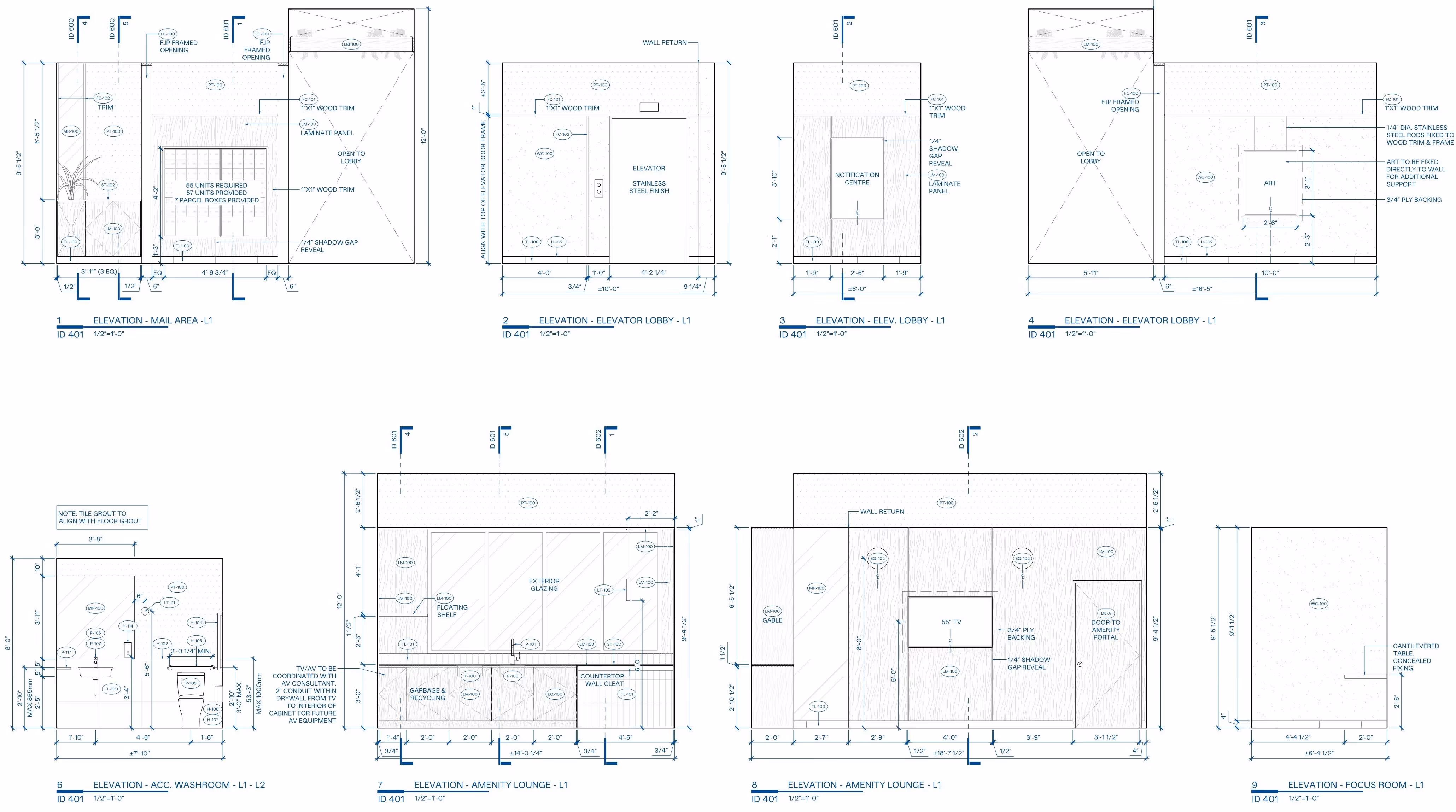
Request a CallOur interior BIM modelling & documentation service provides information-rich coordinated models that capture every interior element with clarity, right from spatial layouts and finish selections to furniture, fixtures, millwork, lighting, and equipment. We develop interior BIM models across LOD 100 to LOD 400, ensuring accurate geometry, material definitions, and parametric features for both design visualization and practical construction needs. Our coordinated models bring together architectural, MEP, and interior design elements with a high level of precision, allowing for dependable clash detection, accurate quantity take-offs, and smoother communication among all project teams. Our modelling covers partitions, ceiling systems, flooring patterns, joinery, cabinetry, fixed & loose furniture, lighting layouts, sanitary fixtures, and speciality design components, all aligned with the design intent and project standards.
Our interior documentation packages incorporate detailed plans, RCPs, flooring layouts, wall elevations, millwork shop drawings, schedules, material specifications, and installation details. Our experts use Revit and BIM-centric workflows to prepare drawings that are properly dimensioned, clearly annotated, and technically coordinated for smooth execution on site.
With a strong focus on accuracy, quality, and coordination, Techture has delivered over 1100 completed projects globally since 2014. With our advanced BIM service, we aim to help our clients reduce design conflicts, shorten approval cycles, support fabrication, and ensure efficient construction delivery. This gives architects, engineers, and consultants a streamlined process from design development (DD) to project handover for bringing their vision into reality.
The shop drawings are generated using 3D BIM Models and hence are consistent with no scope of manual errors. If there are any updates to the model, the plans, sections, details and schedules all update in real time, ensuring correct data in every construction document.
The shop drawing process creation can be automated for a lot of disciplines, ensuring that all the outputs are generated extremely fast and according to a set of defined rules and standards.
Since we build virtual, we put in a lot of thought into value engineering and planning into how costs, delays and wastage can be reduced. Use of BIM based shop drawing workflows encourages off-site and prefab construction which also contributes to a more sustainable project.
Consistent Interior Library
Build a reusable library of intelligent Revit families for faster design and easy updates across projects.
Precise Coordination
Resolve clashes and coordinate furniture, fixtures, and casework with architectural and MEP elements.
Better Buildability
Deliver clear, clash-free documentation that minimizes site errors and costly rework.
Effortless File Conversion
Seamlessly upgrade legacy CAD or Rhino data into BIM-ready files for modern workflows.
Explore Techture’s global project portfolio, showcasing a decade of expertise in delivering high-quality Building Information Modeling (BIM) services for the AEC industry.
Trusted, Reliable, and Committed
Would you like to know more about our BIM and VDC Services & Solutions? Our Consultants and Engineers will be happy to help you.
Hear directly from our pleased clients about how our BIM solutions and Virtual Design and Construction (VDC) services transformed their project management strategy. These success stories demonstrate Techture's BIM/VDC Consulting Services that improve productivity, accuracy, and overall construction project success.







Connect with us to Streamline your construction process, reduce costs, and improve project efficiency with our expert-driven BIM & VDC solutions. To ensure seamless coordination, minimizing errors and delays, we help you to optimize workflows and maximize project success.
It’s the process of developing detailed, data-rich interior models — including furniture, fixtures, and casework — using Revit to support design, coordination, and construction.
Parametric Revit families help maintain consistency, ensure accuracy, and make future design updates faster and easier.
Yes, we provide precise CAD to Revit conversion to modernize your legacy files for BIM workflows.
Absolutely — we translate complex Rhino geometry into Revit, making it usable for documentation and coordination.
We deliver Revit models, custom families, 2D sheets (plans, elevations, sections), and fully coordinated drawing sets.
Hospitality, corporate offices, retail, healthcare, residential — any interior project requiring precise design and coordination.
Interior BIM models help resolve clashes, visualize space usage, and ensure precise fit-outs that match design intent.
Yes — we also provide standalone interior drafting services, supporting your in-house team with clean, coordinated drawings.