
This project involves architectural BIM modeling of stonework at LOD 400 using Autodesk Inventor. The scope includes detailed modeling of individual stone pieces, integration with structural elements, and connection detailing. The project also covers site development coordination, generation of fabrication and shop drawings, and creation of ticketing/delivery drawings to ensure accurate installation on-site.
1. Develop LOD 400 stone models using both Revit and Inventor.
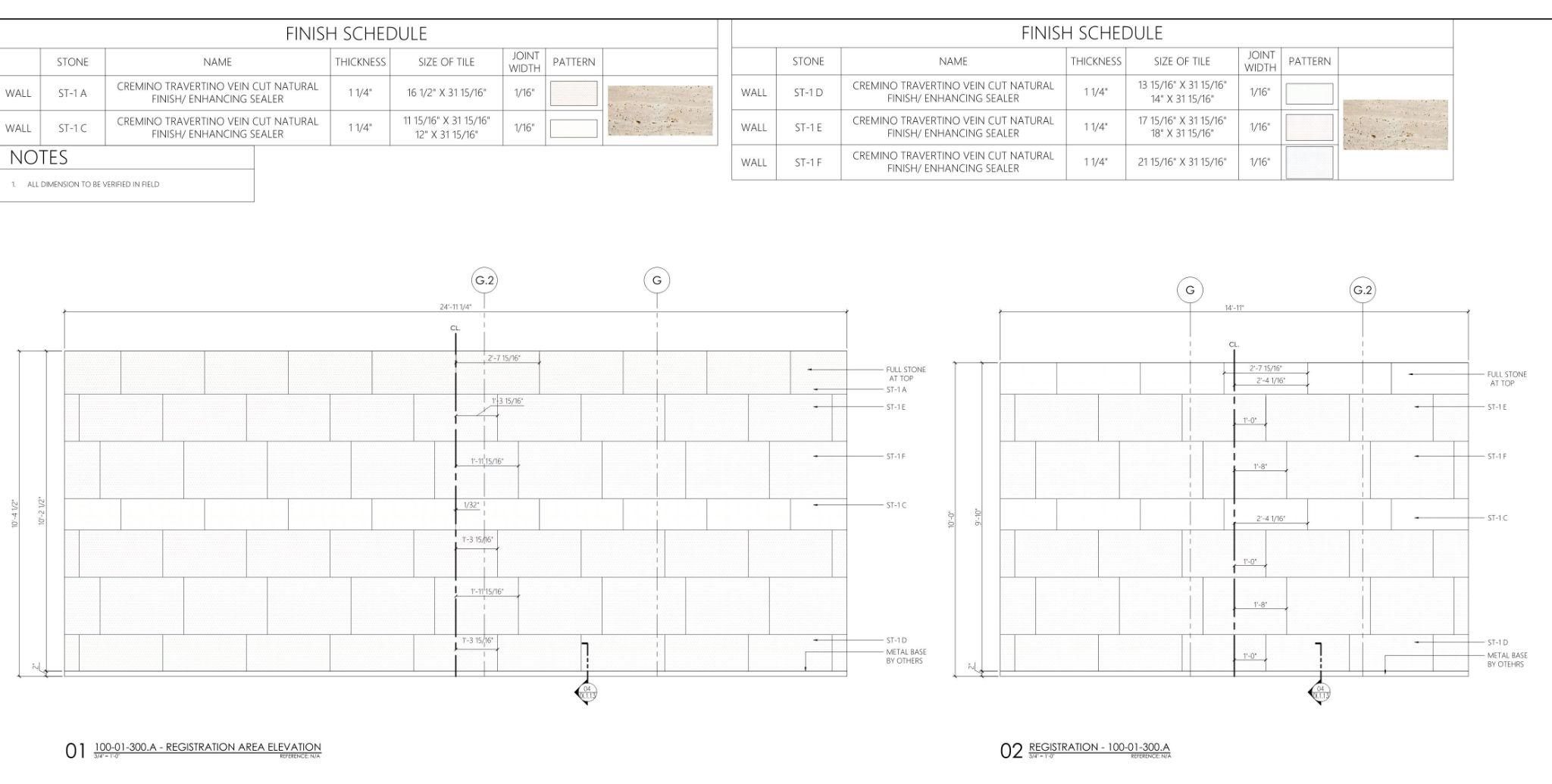
2. Model stone façades in Revit using custom families created from received inputs.
3. Generate comprehensive shop drawings, including plans, elevations, sections, and detailed profiles.
4. Produce detailed tickets for individual stone pieces in Revit, Inventor, and CAD.
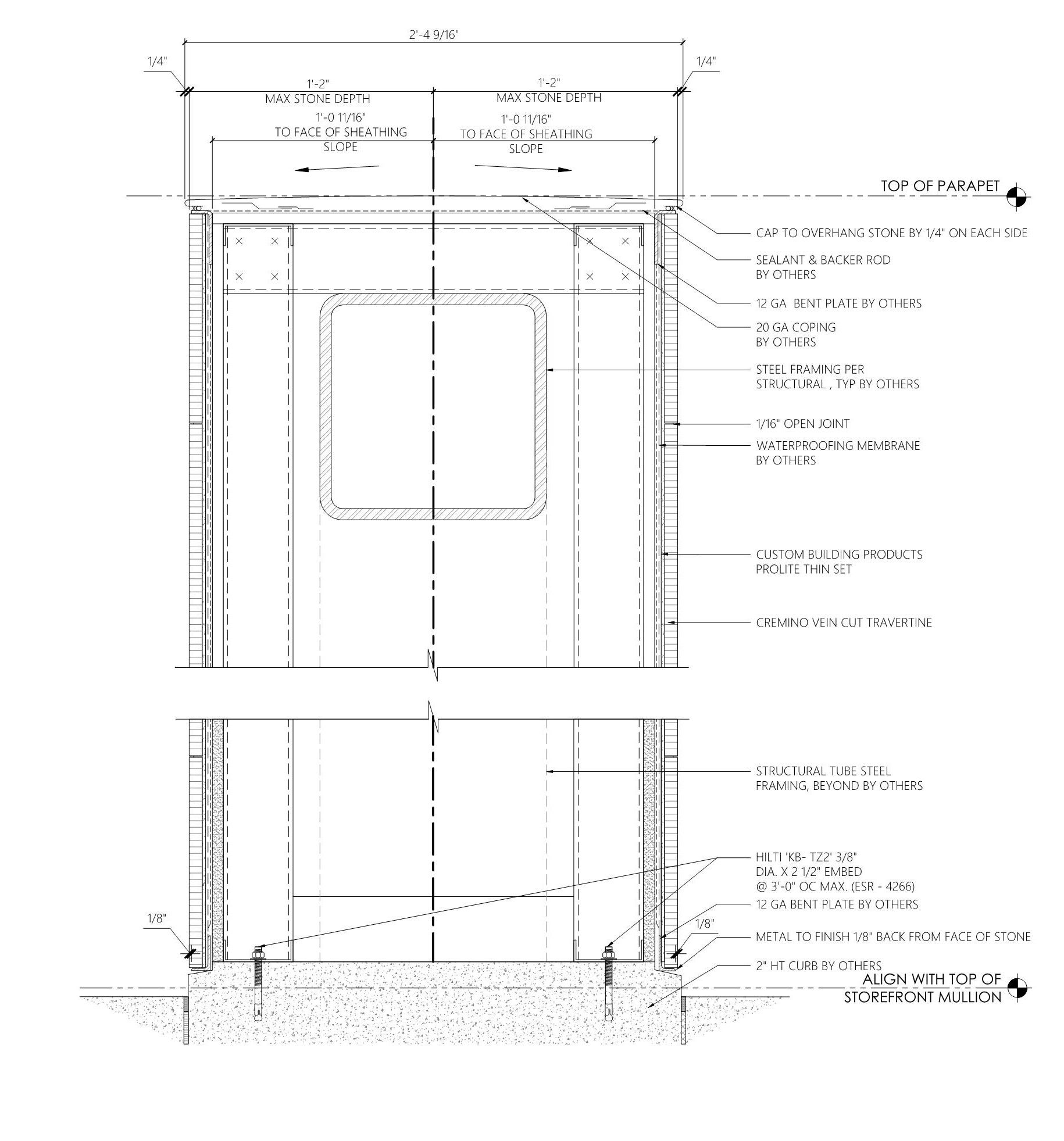
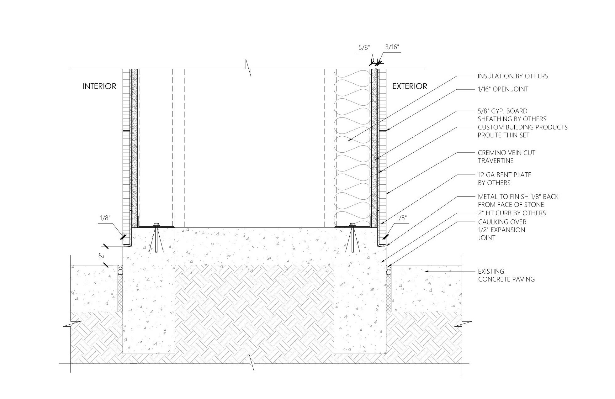
5. Create and document 3D connection details for both modeling and shop drawings.
6. Coordinate the architectural model with construction details to accurately develop the stone façade.
Connect with us to Streamline your construction process, reduce costs, and improve project efficiency with our expert-driven BIM & VDC solutions. To ensure seamless coordination, minimizing errors and delays, we help you to optimize workflows and maximize project success.