
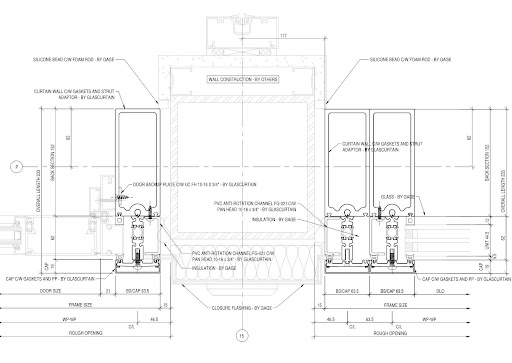
This 60,000 sq ft façade project required high-precision LOD 400 BIM modeling to support fabrication and installation. Using Autodesk Revit for detailed façade modeling and Navisworks for multidisciplinary clash detection, our team delivered coordinated and construction-ready layouts. The scope involved generating complete shop drawings and resolving interface challenges with the primary structure. The model ensured dimensional accuracy, alignment of façade components, and early issue resolution.
1. LOD 400 façade BIM modeling covering panels, brackets, anchors, sub-framing, and secondary support systems.
2. Development of fabrication-ready and installation sequencing shop drawings derived from the coordinated model.
3. Multidisciplinary clash detection and resolution with the structural and adjacent envelope systems using Navisworks.
4. Model-driven constructability analysis, coordination support, and issue tracking throughout design and installation stages.
Connect with us to Streamline your construction process, reduce costs, and improve project efficiency with our expert-driven BIM & VDC solutions. To ensure seamless coordination, minimizing errors and delays, we help you to optimize workflows and maximize project success.