
Techture partnered with an architectural firm to provide BIM support for the detailed design and coordination of a high-end office fit-out project. The scope of work focused on developing a highly detailed 3D BIM model for custom millwork elements, including reception desks, cabinetry, and wall panels. The team was responsible for converting architectural drawings into a fabrication-ready model and ensuring seamless coordination with structural and MEPF disciplines.
1. Imported architectural PDF/CAD drawings to create a project-specific Revit template.
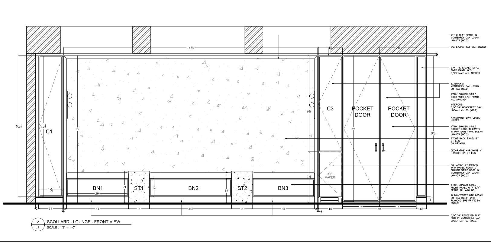
2. Developed a 3D BIM millwork model to LOD 350, including custom cabinetry, built-in shelving, reception desks, and decorative wall panels.
3. Produced a complete set of fabrication-ready millwork shop drawings, including plans, elevations, sections, detailed joinery, and cutting lists.
4. Incorporated all architectural revisions into the model to maintain alignment and consistency throughout the design process."
Connect with us to Streamline your construction process, reduce costs, and improve project efficiency with our expert-driven BIM & VDC solutions. To ensure seamless coordination, minimizing errors and delays, we help you to optimize workflows and maximize project success.