
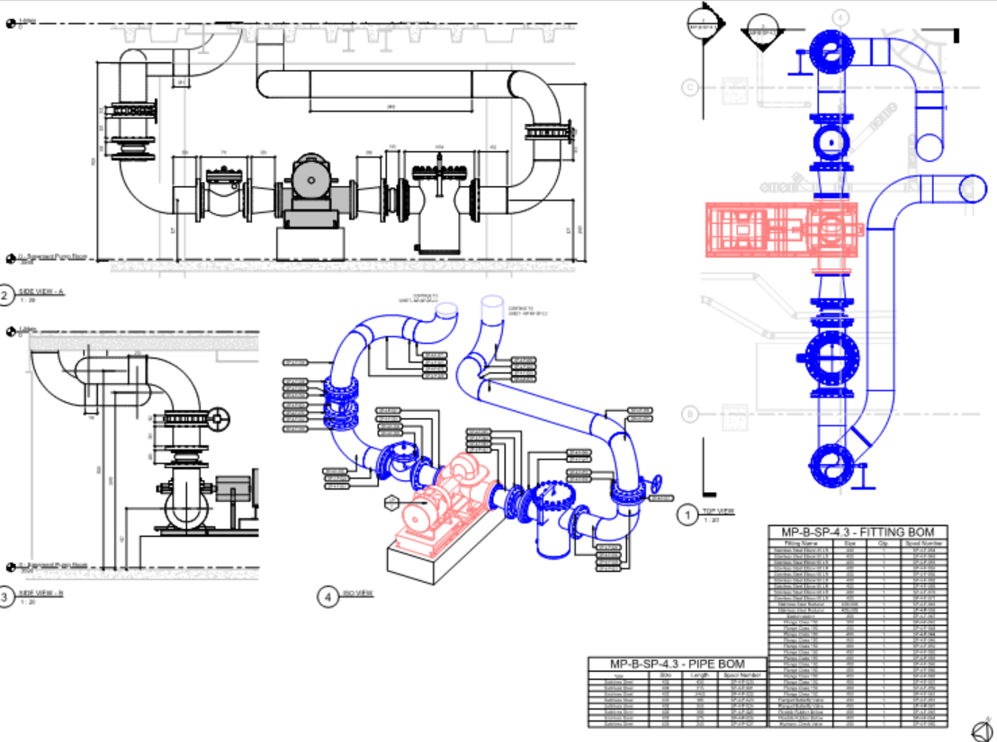
Techture provided BIM support for the plumbing scope of a college building’s pump room. The scope involved developing a detailed LOD 400 plumbing model and generating spool drawings to support fabrication and on-site installation. The primary objective was to achieve seamless, clash-free integration with other building services while adhering to strict project timelines.
1. Development of an LOD 400 plumbing model based on design drawings and consultant inputs.
2. Extraction of spool drawings to support fabrication and installation.
3. Clash detection and coordination with architectural, structural, mechanical and electrical disciplines.
4. Ongoing model updates to incorporate client revisions and detailing inputs.
5. Collaboration with the client and subcontractors to ensure alignment with site execution standards.
Connect with us to Streamline your construction process, reduce costs, and improve project efficiency with our expert-driven BIM & VDC solutions. To ensure seamless coordination, minimizing errors and delays, we help you to optimize workflows and maximize project success.